9月も暑い時代の「軒の出」|秋分の日シミュレーションで見る500mmと1400mmの違い
こんにちは、福岡のビオハウジング
健康オタクの住宅設計士、竹森哲也です。
最近、9月になっても全然涼しくならないですよね。
「秋分なのに、体感はまだ真夏…」という日が続いて、エアコンのスイッチを切るタイミングが見つからない、という声もよく聞きます。
その結果、
昔ながらの 「夏至の日を基準にした軒の出」 だけでは、
9月の暑さをさばききれなくなってきています。
そこで今回は、
同じ9月22日(秋分頃)でも、軒の出が500mmと1400mmで、室内の日射がどう変わるのか?
を、南面窓のシミュレーション画像を前提にしながら、
イメージしやすいようにお話ししていきます。
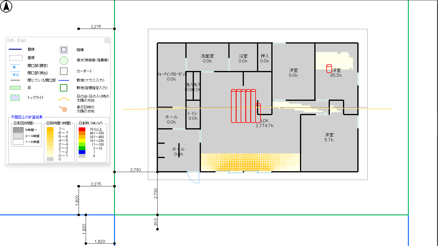
緑のラインが春分、秋分の日です。さて、軒の出でどうかわるのでしょう?

1. 9月も“秋”ではなく「夏の延長」になっている
まず前提として、
9月そのものが昔より確実に暑くなっている、という現実があります。
-
2023年・2024年の9月の平均気温は、
平年より約2.5℃も高く、「観測史上でも上位の高温」と報じられました。 -
2025年の夏(6〜8月)も、平年比+2℃以上とされ、
「統計開始以来もっとも暑い夏」と言われています。
つまり、9月はもはや
「秋に入った」というより、
“夏がそのままズルズル延長している”
状態が定着しつつある、ということです。
体感としても、
-
9月下旬でもエアコンが必須
-
西日+蒸し暑さで、夕方の室内がムワッとする
-
子どもが学校から帰る時間帯も、まだ真夏日レベル
…という状況が当たり前になりつつあります。
こうした変化がある中で、
「夏至の日に直射が入らなければOK」という従来の設計思想のままでは、
“9月の残暑” に対応しきれない
というズレが、生まれてしまっているのです。
2. 9月22日を基準に、「軒の出」を考え直す
● なぜ 9月22日(秋分)を基準にするのか?
9月22日前後は、
-
昼と夜の長さがほぼ同じ
-
太陽高度が「真夏と真冬のちょうど中間」
という、暦の上では「秋の入り口」です。
しかし、最近の気温状況では、
“太陽の高さは秋” なのに、“気温は夏寄り”
というアンバランスな状態になっています。
ここがとても重要で、
-
日差し自体はまだ強い
-
でも太陽の高さは真夏より低いので
→ 軒の下をくぐって、室内に届きやすい
という条件が整ってしまうのです。
だからこそ、
「9月22日にどこまで日が入るか」が、
夏の後半〜秋の手前の快適性を左右する
と言っても過言ではありません。
3. ケース①:軒の出 500mm の9月22日シミュレーション

● 見えてくる日射の様子
午前〜正午
-
軒は少し効いているものの、
太陽高度が「真夏より低い」ため、 -
窓ガラスの大部分に直射日光が当たる 状態になります。
午後
-
日差しが傾くにつれて、
直射が室内の奥まで伸びていき、 -
床・壁・家具がじわじわと熱をため込んでいきます。
● 体感として起きそうなこと
-
昼〜夕方にかけて、
-
南側リビングの 床がじんわり熱くなる
-
夕方になっても室温がなかなか下がらない
-
-
「外は少し涼しくなってきたのに、室内はムワッとしている…」
-
→ エアコンを切るタイミングがつかめない
-
という状態が起こりやすくなります。
● メリット・デメリット(500mm)
メリット
-
冬・春はしっかり日だまりができやすい
-
軒の出が小さいぶん、外観はスッキリした印象に
-
構造負担やコストは比較的おさえやすい
デメリット
-
9月の残暑には、日射カットが弱い
-
ガラス越しの直射で、
-
冷房負荷が高くなりがち
-
夕方〜西日タイムの不快感が大きい
-
4. ケース②:軒の出 1400mm の9月22日シミュレーション
下の図は1日にどれくらい日射を取得したか色で表してます。

今度は、思い切って軒を 1400mm(1.4m) まで出したケースです。
縁側や深い庇のある和の家をイメージしていただくと、近い感覚です。
● 見えてくる日射の様子
午前〜正午
-
太陽がまだ高めの時間帯でも、
-
窓上部までしっかり影がかかる
-
直射はガラスのごく下の方か、ほとんど当たらない
-
午後
-
日差しが傾いてきても、
-
室内の奥までは直射が届きにくい
-
床の日だまりゾーンも浅く、手前側にコンパクトに収まる
-
● 体感として起きそうなこと
-
真夏ほどではないとはいえ、まだ暑い9月でも、
-
日射熱の流入がかなり抑えられるので
-
「エアコン弱め+シーリングファン+窓開け」程度で心地よい 状態がつくりやすい
-
-
夕方に南側からの直射で部屋が再加熱されにくく、
-
夜の寝つきもラクになりやすい
-
● メリット・デメリット(1400mm)
メリット
-
9月の残暑〜真夏日レベルでも、直射をかなりカットできる
-
外壁の雨よけ・日よけ効果が大きく、
-
劣化・汚れを抑えやすい
-
-
雨の日でも、窓を少し開けて
自然換気をしやすい(軒が屋根代わりになる)
デメリット(設計で工夫が必要なポイント)
-
冬の「日だまり」をどこまで確保するか、細かい調整が必要
-
階高・窓の高さ・天井高さとのバランスを取りながら、
-
室内が暗くならないように計画する工夫 が求められる
-
-
構造(持ち出し梁・金物)、コスト、風荷重などにも配慮が必要
5. 500mm と 1400mm の比較から見える「これからの軒」
① 何を基準に設計するか?
これまで:
-
「夏至の日の正午に直射が入らなければOK」
これから:
-
「9月22日の昼〜夕方に、どこまで日が入るか」を重視
9月も真夏日が当たり前になった今、
秋分のシミュレーションを見る価値は、かなり大きくなっています。
② 500mm が合う暮らし/1400mm が合う暮らし
軒 500mm が合いそうなケース
-
冬の日だまりを最優先したい
-
9月の残暑は、
-
窓まわりの外付けシェードなどで調整しても良い
-
-
隣家が近く、深い軒を出しにくい敷地条件
軒 1400mm が合いそうなケース
-
「9月〜10月頭くらいまで暑い」のを、できるだけ軽くしたい
-
南側に庭やデッキがあり、
-
内外の中間領域(縁側・テラス)をしっかりつくりたい
-
-
外壁のメンテナンス性・耐久性も重視したい
③ 数字だけでなく、「暮らしのシーン」で選ぶ
単純に、
-
「500mm より 1400mm の方が偉い」
-
「軒は長ければ長いほど良い」
という話ではありません。
大事なのは、
どんな季節に、どんな時間帯を、どんなふうに過ごしたいか
という「暮らしのシーン」です。
-
9月の午後3時〜5時、子どもがリビングで宿題をする
-
休日の午前中、ソファで光を感じながら本を読む
-
冬の昼間、日だまりでお昼寝をする
…そんな具体的なシーンをイメージしながら、
-
軒の出
-
窓の配置・高さ
-
ガラス性能
-
庭・デッキ・植栽とのつながり
をセットで決めていくことが、とても大切だと感じています。
6. ビオハウジングでの「これからの軒設計」
ビオハウジングでは、
これまでの「夏至基準」だけでなく、
-
9月22日(秋分)の日射条件
-
場合によっては、
8月後半〜9月前半の「実際の気温・日射状況」
も視野に入れながら、
-
軒の出(500mm〜1400mmクラスまで)
-
南面窓の大きさ・高さ・位置
-
外付けシェードや植栽との組み合わせ
を、シミュレーションで確認しつつ設計しています。
とくに 福岡・北九州エリアでは、
-
「夏のエアコン負荷」と
-
「冬の日だまり」
この2つのバランスをどう取るかが、
暮らしの心地よさと電気代の両方に、大きく効いてくるからです。
おわりに ― 9月の暑さに合わせた「新しい軒の常識」
-
9月も真夏日が当たり前
-
秋分の日でも、エアコンが欠かせない
そんな時代には、
「夏至さえ遮れればいい軒」から
「9月22日の日差しを基準にした軒」へ
考え方をアップデートする必要があります。
今回ご紹介した、
-
軒 500mm の9月22日
-
軒 1400mm の9月22日
という2つのシミュレーションは、
その違いを「目で見る」ための一つの材料です。
これから家づくりを考えている方は、
ぜひ図面だけでなく、
「9月22日の昼間、この窓から光はどこまで入る?」
という視点で、
一緒に軒と窓をデザインしていけたら嬉しいです。
Q1. なぜ「夏至」ではなく「9月22日(秋分)」を基準に軒の出を考えるのですか?
最近は9月になっても真夏日が続き、秋分の頃でもエアコンが欠かせない年が増えています。太陽の高さはすでに真夏より低く、軒の下をくぐって日射が室内まで届きやすい時期です。そのため、夏至の日だけ直射を遮れれば良いという考え方では、9月の残暑をコントロールしきれない場合があります。9月22日を基準にシミュレーションすることで、「暑さが残る時期の実際の光の入り方」を設計に反映しやすくなります。
Q2. 軒の出500mmと1400mmでは、9月22日の日射はどう違いますか?
軒の出500mmでは、9月22日でも南面の窓に直射日光がしっかり当ち、昼〜午後にかけて床や壁に熱がたまりやすくなります。一方、軒の出1400mmでは、同じ9月22日でも窓の大部分に影がかかり、直射が室内奥まで届きにくくなります。その結果、残暑の時期でも室内温度の上昇を抑えやすく、冷房負荷や夕方のムワッとした暑さを軽減できます。
Q3. 軒の出1400mmにすると、冬の日当たりが悪くなりませんか?
軒の出を1400mmまで出すと、確かに冬の日だまりは浅くなりやすくなります。ただし、窓の高さや位置、室内の天井高さ、周りの反射光の取り込み方を工夫することで、「冬も暗くならず、ほどよく日射を取り込む」バランスをとることは可能です。重要なのは、軒の長さだけでなく、南面窓の大きさ・高さ・配置をセットで検討し、シミュレーションを見ながら決めていくことです。
Q4. 9月の暑さ対策として、軒の出以外にできる工夫はありますか?
はい、軒の出だけでなく、いくつかの工夫を組み合わせると効果的です。例えば、南面窓に外付けシェードを付ける、ガラスを遮熱タイプにする、デッキや縁側と一体で深い日陰スペースをつくる、落葉樹の植栽で夏だけ日差しを和らげるなどです。福岡・北九州のような暑さの厳しい地域では、「軒の出+窓性能+外付け日よけ+植栽」を総合的にデザインすることが、9月の残暑を快適に乗り切るポイントになります。